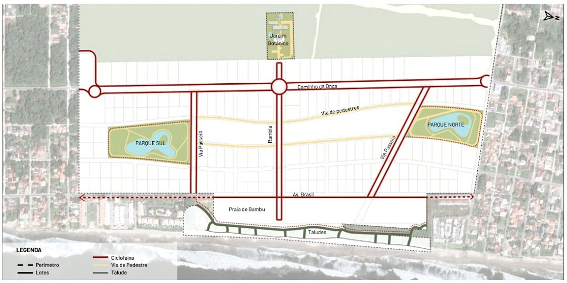
Rambla é um eixo viário com largo passeio central para pedestres, margeado pela circulação de veículos em baixa velocidade. Objetiva incentivar a relação entre o espaço público e privado através de comércio, mobiliário urbano e harmonização paisagística.
Categoria:
Riviera Santa Maria
A Riviera Santa Maria compreende uma área de 130 ha situada em posição central no perímetro urbano de Itapoá. A Praia de Bambu será uma “antessala” aos espaços da Orla e da Praia, com arquitetura leve e transparente, onde diversas atividades de comércio e lazer estarão disponíveis e interligadas por uma galeria de bambu: restaurantes, sorveterias, cafés, bares e comércio em geral.
















